Назначение: Компрессоры могут быть использованы в любой отрасли народного хозяйства, где требуется сжатый воздух.
| ВУ-0,6/13М1 | Пневмосети контрольно-измерительных приборов (систем) |
| 2ВУ 0,5-0,8/13 | |
| ВУ-0,6/16 | |
| 2ВУ 0,5-0,8/13 | Строительство |
| 2ВУ 0,5-1,12/8 | Мукомольные комплексы, крупные прачечные |
| 2ВУ 0,5-0,8/13 | |
| 2ВУ 0,25-0,6/16 | Обеспечение сжатым воздухом различных силовых установок |
| 2ВУ 0,5-0,4/64(32) | Керамические заводы в технологических линиях производства плитки, санфаянса, посуды |
| Наименование, марка | Производи- тельность, приведен- ная к условиям всасывания, м3/мин | Давление абс., кГс/см2 | Охлажде- ние воздуха (газа) | Мощность электро- двигателя, кВт | Скорость электро- двигателя, об/мин | Примеча- ние | |
|---|---|---|---|---|---|---|---|
| всасыва- ния | нагнета- ния | ||||||
| ВУ-0,6/13М1* | 0,6 | Атм | 13 | Воздушное | 5.5 | 1500 | - |
| 2ВУ 0,5-0,8/13* | 0.76 | Атм | 13 | Воздушное | 7.5 | 1500 | - |
| 2ВУ 0,5-1,12/8 | 1.1 | Атм | 8 | Водяное | 11.0 | 1500 | С концевым газоохладителем или без него |
| 2ВУ 0,5-1,12/8КО* | |||||||
| 2ВУ 0,5-1,4/5 | 1.32 | Атм | 5 | Воздушное | 11.0 | 1500 | |
| 2ВУ 0,5-1,4/5КО* | |||||||
| 2ВУ 0,25-0,6/16 | 0.56 | Атм | 16 | Воздушное | Без двигателя | - | - |
| ВУ-0,6/16 | 0.56 | Атм | 16 | Воздушноое | 7.5 | 1500 | - |
| 2ВУ 0,5-0,4/64(32)* | 0.34 | Атм | 64 | Водяное | 11.0 | 1000 | - |
*Компрессоры по требованию потребителя могут быть автоматизированы и комплектоваться унифицированной системой управления (УСУ). УСУ обеспечивает автоматическую защиту и регулирование. Масса электронного пульта управления – 5кг, габаритные размеры 300х200х150 мм

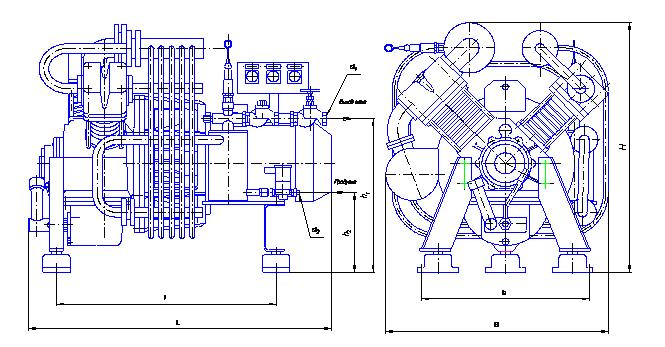
| Наименование компрессора | Габаритные, установочные и присоединительные размеры, мм | Масса, кг | Приме- чание | ||||||||
|---|---|---|---|---|---|---|---|---|---|---|---|
| L | l | H | h1 | h2 | B | b | d1 | d2 | |||
| ВУ-0,6/13М1 | 920 | 656 | 760 | 452 | 230 | 690 | 472 | G-3/4 | G-3/4 | 215 | - |
| 2ВУ 0,5-0,8/13 | 1000 | 676 | 800 | 390 | 167 | 800 | 360 | G-3/4 | G-3/4 | 218 | - |
| 2ВУ 0,5-1,12/8 | 960 | 718 | 850 | 592 | 505 | 730 | 360 | G-3/4 | M12x1.5 | 230 | - |
| 2ВУ 0,5-1,4/5 | 960 | 718 | 850 | 592 | 505 | 730 | 360 | G-3/4 | M12x1.5 | 230 | - |
| 2ВУ 0,25-0,6/16 | 600 | 264 | 650 | 120 | - | 630 | 392 | G-3/4 | - | 110 | Без электро- двигателя |
| ВУ-0,6/16 | 900 | 656 | 760 | 452 | 230 | 690 | 472 | G-3/4 | G-3/4 | 215 | - |
| 2ВУ 0,5-0,4/64(32) | 1100 | 962 | 825 | 600 | 320 | 875 | 360 | ∅14 | ∅14 | 290 | - |